1-bedroom apartment № C203 with a direct view of the sea, the fortress of the Old Town and Mediteranska str

  • Art
  • Kauf
  • Immobilienart
  • Wohnung
  • Fläche
  • 54 m2
  • Stockwerke
  • 9
  • Anzahl der Zimmer
  • 2
Investment and construction company «Nova Gradnja Budva – Alart Centar-Budva CG» presents you our new project of an exclusive multi-complex «PORTO BUDVA» with access to the street Mediteranska and  Promenade, in the heart of Budva city!

Invest in the construction of housing in the initial stage and earn!

Crisis Solution!

Excellent location of the object, just 20 meters from the beach!

Sea view!

Excellent offer for investment!

Installment 2 years for apartments and 1 year on business premises!

After commissioning of the object, the price will increase by 50%!

We offer more discounts when you buy more than one apartment, and with different methods of payment!

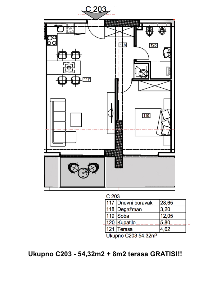
1-bedroom apartment № C203 on 2 floor ( high 4) , total area 54,32 м2  + 8 m2  terrace with landscaping as a gift in an exclusive multi-complex «Porto Budva» with a shopping center of 8000 sq.m and a SPA-center 3500 sq.m with a wide range of services, with the medical center, with indoor and outdoor pools!

Apartment on the fourth floor. Ceiling height 3.4 m.

The price of apartments is including designer renovation!

The apartment with a direct view of the sea and the fortress of the Old Town one bedroom apartment, total area is  54,08 sq.m + 8,02 sq.m terrace with landscaping as a gift!

 Price: 33000e / sq.m in installments on a 2-year.

Monthly fee for maintenance of the house 0,50 e/m2 (elevator maintenance, cleaning of common internal premises and adjacent territory).

The apartment consists of:

Living room with the adjoining kitchen 28, 65 sq.m

Bedroom 12,05  sq.m

Dressing 3,20  sq.m

Terrace 4.62 sq.m

WC+Bathroom 5,80 sq.m

Interior decoration / design repair!

Rooms:

Dropped ceilings

Lighting

Wallpaper

Heated floors

Oak parquet 1st class

Bathroom:

Plumbing: Villeroy & Boch (shower or bathtub)

Marble

Granite firm “Travertine”

Mosaic tiles of Venetian glass firm “Valentino”

Heated floors

Facade: granite beige firm “Travertine”, three-chamber profiles windows.

Management Company provides services to resale and rent your apartment throughout the year!

Surveillance!

The price of apartments includes the cost of designer finishes premium!

Additional equipment according to your wishes!

Ability redevelopment apartment under construction!

All materials for the apartments, you can directly choose from us!

Full support of the transaction!

For clients with free legal services!

When purchasing real estate granted a residence permit in Montenegro for a year!

Completion date  – the end of 2018.

 
  • Lage
LandMontenegro
RegionBudva Municipality
OrtBudva
Immobilienart:Wohnung
  • Eigenschaften
Baujahr:2018
Anzahl der Zimmer:2
Anzahl der Schlafzimmer:1
Anzahl der Küchen:1
Wohnfläche (m2):54
Grundstücksfläche (m2):6000
  • Komfort
Fussbodenbelag:Fliesenboden, Laminatboden, Parkettboden, Teppichboden, Holzdielen, Marmorboden
Bad:Bad mit Dusche
Andere Räume:Abstellraum, Ankleideraum
Sicherheitsanlagen:Alarmanlage, Videoüberwachung, Notruf-Anlage, Security, Rauchmelder
Ausstattung:Aufzug, Garten, Wintergarten, Klimaanlage, Kamin, Sauna
Heizungsart:Elektroheizung
Möblierung:unmöbliert
Fensterrahmen:Alurahmen
Fensterverglasung:Lärmschutzverglasung, Sonnenschutzverglasung, Wärmeschutzverglasung, Panzerglasverglasung
Aussicht:mit Aussicht auf die Berge

179 256 €

209 705 $
15 787 346 ₽

Auf der Karte

Weitere Angebote dieses Anbieters